Varanda
Moradia Geminada T3 +1 Venda – Campolide
Sobre o imóvel
Informação geral
Características do imóvel
Destaques do imóvel
Descrição do Imóvel
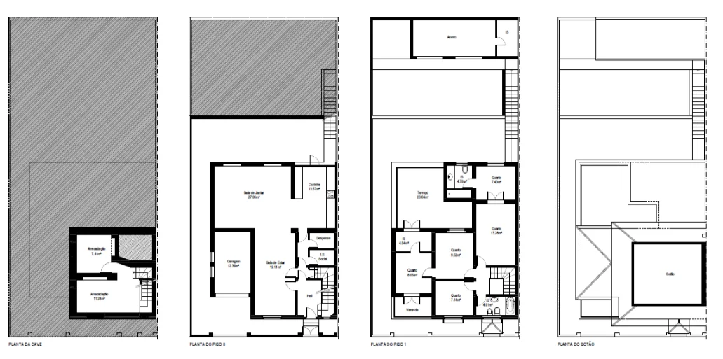
Moradia Geminada T3 + 1 com jardim, totalmente remodelada incluindo canalização e eletricidade, inserida num lote de terreno com 244m2.
Esta é composta por 3 pisos, sendo que no piso -1, tem uma duas zonas de arrumos, que poderão ser utilizadas para arrumos ou um escritório, indo para o Rés do chão, encontra uma ampla sala com 46m2, podendo ser dividida em sala de estar e jantar em Open Space com a cozinha toda equipada com eletrodomésticos da marca BOSCH, dispensa e wc social.
Conta ainda com acesso a um terraço de 30m2 onde poderá desfrutar de bons momentos em família.
A garagem situa-se no Rés do chão, com estacionamento para uma viatura.
No piso superior, encontrará três suites, ambas com closet e com acesso ao terraço de 24m2 e varanda. Todos os wc´s das suites têm janela. Neste piso tem acesso ainda a um sótão com 20m2 que poderá usar para arrumos.
Na parte exterior tem acesso a um anexo com 30m2 com wc completo.
A moradia foi remodelada materiais de alta qualidade, e revestida a capoto para um melhor isolamento térmico e acústico.
Localizada em Campolide, junto ao Aqueduto das águas Livres, próxima de todo o tipo de comércio, serviços, escolas e transportes públicos.
A poucos minutos das Amoreiras e Liceu Francês e com optimos acessos ao eixo norte sul, A5, radial de Benfica e 2ª circular.
Aguardamos a sua visita
Disponibilidades
Sobre a Trust Absolutely
A nossa missão é o foco em prestar um serviço sem paralelo em todas as fases do processo, oferecendo soluções chave-na-mão, exclusivas e de topo.
Fornecemos consultoria e orientação personalizadas, que são meticulosamente adaptadas às circunstâncias específicas de cada cliente, com base em princípios fundamentais enraizados nas nossas operações diárias, para a ética do nosso grupo e empresa. Estes princípios incluem a confiança, o foco no cliente, a competência técnica, a experiência e uma extensa rede de parceiros, permitindo aos nossos clientes tomar decisões informadas e alinhadas com as suas visões e expectativas únicas.
Confiança, em absoluto!
